Ziser Immobilien - Zertifikate
Treffen Sie uns auf Facebook
Treffen Sie uns auf Instagram

Kapitalanleger gesucht! - Mehrfamilienhaus mit 4 Parteien in Endingen


  • Luftansicht 1

  • Hausansicht 1

  • Hausansicht 2

  • Luftansicht 3

  • Luftansicht 2

  • Lageplan

  • Dachgeschoss

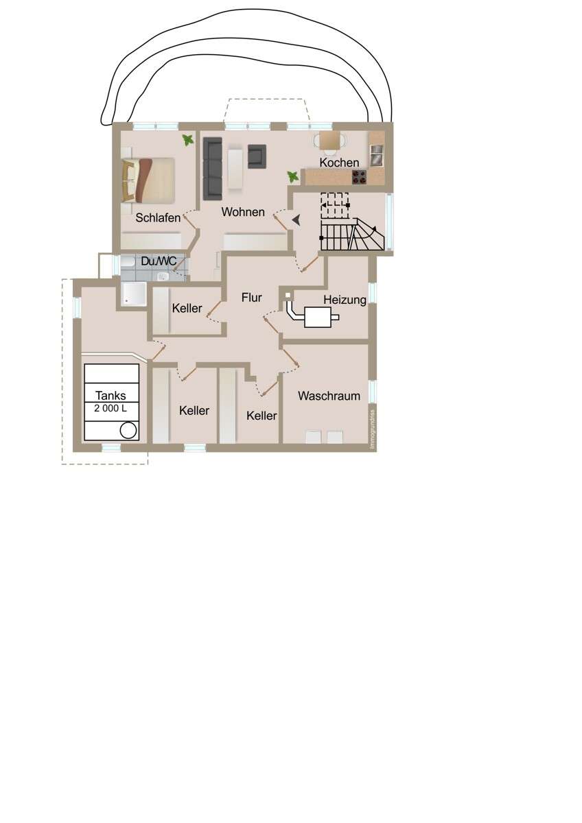
  • Kellergeschoss

  • Obergeschoss

  • Erdgeschoss

Objektnummer:
Ziser-2632
Ortsangaben:
Endingen
Anzahl Zimmer
13.00
Anzahl Badezimmer:
4.00
Sep. WC:
2.00
Wohnfläche:
289.54
Grundstücksfläche:
636.00
Anzahl Stellplätze:
3
Baujahr:
1993
Keller:
JA
Kaufpreis:
853.000 €
Preiszusatzinformation:
Provision: 3,57 %
Objektbeschreibung:
Das Mehrfamilienhaus mit 4 Parteien aus dem Jahr 1993 mit Photovoltaikanlage (13,65 kWp) und einer Öl-Heizung befindet sich auf einem 636 m² großen Grundstück und eignet sich besonders für Kapitalanleger. Die Photovoltaikanlage bringt zusätzlich noch monatliche Einkünfte.

Die Erdgeschoss- sowie die Dachgeschosswohnung sind seit 1994 vermietet. Wobei die Kellerwohnung seit dem 01.01.2023 und die Obergeschosswohnung seit dem 01.04.2024 vermietet sind.
Ausstattung:
Das Mehrfamilienhaus verfügt über 289,54 m² Wohnfläche und ist aufgeteilt in:

Erdgeschoss mit 101,35 m²:
- eine Küche mit großer Essdiele
- ein Wohnzimmer mit Zugang zur Terrasse
- ein Bad mit Wanne, Dusche, Doppelwaschbecken und WC mit Fenster
- zwei Kinderzimmer mit Zugang zur Terrasse
- ein Elternschlafzimmer
- ein Gäste-WC

Obergeschoss mit 97,26 m²:
- eine Küche
- ein offenes Wohn-Esszimmer mit Zugang zum Balkon
- ein Bad mit Fenster, Wanne, Dusche, Doppelwaschbecken und WC
- zwei Kinderzimmer
- ein Elternschlafzimmer
- ein Gäste-WC

Dachgeschoss mit 46,95 m²:
- eine offene Wohn-Ess-Küche
- ein Schlafzimmer
- ein Bad mit Dusche, WC und Waschbecken mit Fenster
- ein Abstellraum

Kellergeschoss mit 42,86 m²:
- eine offene Wohn-Ess-Küche
- ein Schlafzimmer
- ein Bad mit Dusche, WC und Waschbecken mit Fenster

Das Haus ist an das Glasfasernetz angeschlossen. Jede Wohnung verfügt über einen eigenen Kellerraum; der Keller der Dachgeschosswohnung befindet sich hinter der Garage.

Die Einbauküchen gehören den Mietern, mit Ausnahme der Kellerwohnung.

Zwei Garagen sind an die Erdgeschoss- und Obergeschosswohnung vermietet. Ein zusätzlicher Außenstellplatz wird von den Mietern der Dachgeschosswohnung genutzt.

Ein gemeinsamer Wasch- und Trockenraum steht zur Verfügung.
Lage:
Die Stadt Endingen, mit historischem Stadtkern, verfügt über eine hervorragende Infrastruktur mit zahlreichen Einkaufsmöglichkeiten. Kindergarten und verschiedene Schularten sind vor Ort vorhanden. Endingen ist durch die Kaiserstuhlbahn mit dem Hbf Freiburg und an das überregionale Schienennetz angebunden. Die Autobahn A5 ist in wenigen Minuten zu erreichen
Sonstiges
Alle 4 Wohnungen sind solide vermietet und die jährlichen Kaltmieteinnahmen belaufen sich insgesamt auf 31.680,00 €. Die letzte Mieterhöhung wurde zum 01.06.2025 bei der Erdgeschoss- und der Dachgeschosswohnung durchgeführt.

Die Maklerprovision beträgt 3,57 % (inkl. MwSt.) in Höhe vom notariell beurkundeten Kaufpreis.

Sofern Sie weitere Informationen wünschen oder einen Ortstermin vereinbaren möchten, freuen wir uns über eine Nachricht von Ihnen: Bei schriftlichen, oder E-Mail - Anfragen, bitten wir um Ihre kompletten Adressdaten (inkl. Telefonnummer).

Alle Angaben nach bestem Wissen. Irrtum und Zwischenverkauf vorbehalten. Dieses Exposé ist eine Vorinformation, als Rechtsgrundlage gilt allein der notariell abgeschlossene Kaufvertrag.

Ziser Immobilien Telefon: 07642 - 90 14 50 E-Mail: info@ziser.de www.ziser.de


Ziser Immobilien
Immobilie verkaufen
Der richtige Preis
Die Verkaufsstrategie
Das professionelle Verkaufsgespräch
Der rechtssichere Verkauf
Immobilie vermieten
Risiken vermeiden
Unser Bausteinprinzip
Die Bausteine
Die besondere Vermietung
Immobilie bewerten
Warum bewerten?
Das passende Gutachten
Die Bewertungsverfahren
Bewertung für den Verkauf
Immobilien-Service
Immobilien-Vertrieb
Ein Grundstück verkaufen
Immobilien verwalten
Lösungen finden
Ziser Immobilien
Hauptstraße 38
79359 Riegel
Freiburg Webdesign - Heusser Datendesign